甲府市和田町 中古戸建

緑豊かな立地に存する西洋と和を取り入れた内外装の戸建住宅。
別荘としても適しており、富士山を眺められる眺望も魅力的です。
庭は広々としており、家庭菜園やガーデニングを楽しむことができます。
ゆったりとした時間を過ごせる戸建ですので、是非一度ご内覧ください。
販売価格
2,500万円
この物件の詳細
種別中古物件
土地面積549.27 ㎡(公簿)
建物面積
1階: 115.32 ㎡
2階: 99.96 ㎡
3階: 41.85 ㎡
建物構造木造
築年月1985年(昭和60年) 5月
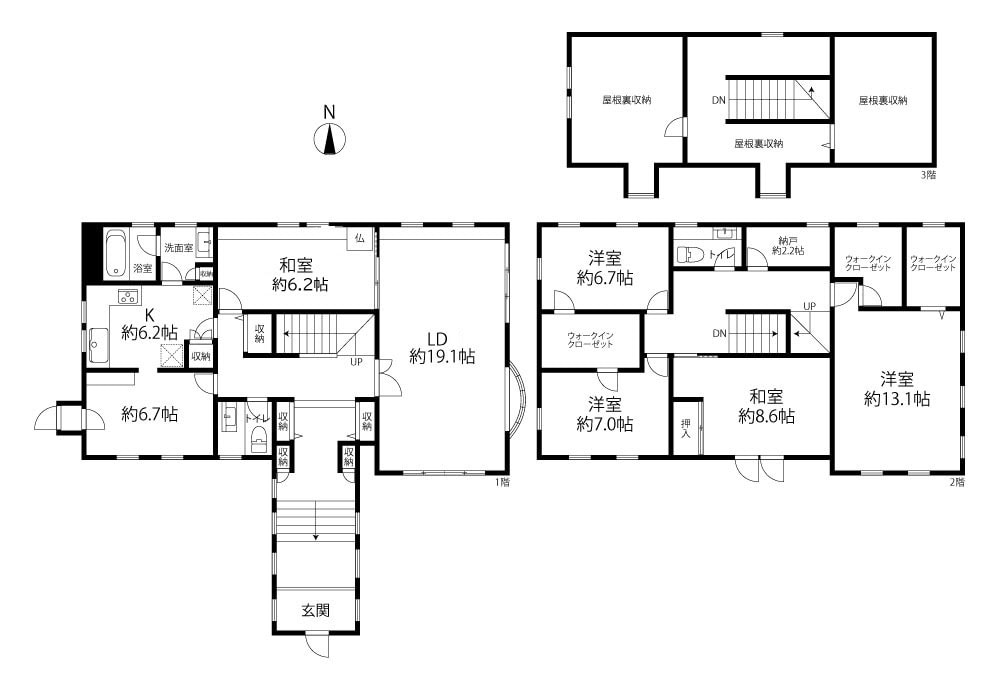
間取り6LDK+3WIC+屋根裏部屋
接道状況
(南西側 : 幅員 4.1m 私道:位置指定道路(持分2分の1))
駐車場
あり
都市計画区域市街化区域・市街化調整区域
用途地域第一種低層住居専用地域
その他の制限景観法, 宅地造成等規制法, 風致地区
建ぺい率40 %
容積率80 %
地目宅地・雑種地
土地権利所有権
取引態様専任媒介
引渡し相談
備考欄
◆公衆用道路部分183.96㎡がございます。(持分2分の1)◆本物件は登記上3階建で登記されていますが、2階建で建築確認が取得されています。原因は不明です。◆本物件は南側県道には接道しておらず、本物件内の通路部分が位置指定道路の認定(甲府市告示第143号)を受けており、当該位置指定道路に接道しているため、再建築は可能です。◆本物件は、市街化区域と市街化調整区域に跨っております。◆現況と間取り図が相違している場合は、現況を優先します。◆本物件の建物・設備・建具等は、劣化や自然損耗が見受けられ、正常に稼働しない場合がございますが、現況のままの引渡しとなります。◆物件詳細はお問い合わせください。
Contactエリアを問わず対応可能です
全国各地の不動産を対応することができます。 得意としているエリアは、山梨全域はもちろん、京都・大阪での経験が長くあり、得意としておりますので、お気軽にご相談ください。
ご相談・お問い合わせはこちら


















