(商談中)南アルプス市藤田 中古戸建

木を基調としたデザイナーズ住宅。
外観から内装まで、木材を主とした資材を使用し、落ち着いた雰囲気を作ります。
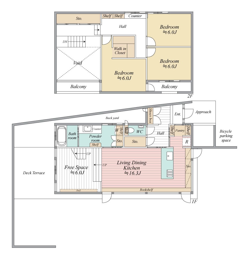
3LDK+フリースペース+WICの間取りで、LDKは約16.3畳の広さです。
LDKには、家のシンボルとなるコーナーウィンドウがあり、柔らかな光を取り込みます。
敷地内には、庭やウッドデッキスペースがあり、エクステリアリフォームをすることで、
好みにあった空間を自由にご計画することができます。
他とは違う空間作りが可能な住宅です。
是非一度ご内覧ください。
販売価格
2,180万円
この物件の詳細
種別中古物件
土地面積255.17 ㎡(公簿)
建物面積
1階: 64.15 ㎡
2階: 49.68 ㎡
建物構造木造
構造の詳細吹抜け, デザイナーズ
築年月2009年(平成21年) 7月
間取り3LDK+フリースペース+WIC
部屋構造LDK15帖以上, 全居室6帖以上
接道状況
(北側 : 幅員 6.0m 公道)
(西側 : 幅員 4.9m 公道)
駐車場
あり
設備
オール電化
都市計画区域非線引区域
用途地域定められていない
その他の制限景観法, 宅地造成工事規制区域(盛土法)
建ぺい率70 %
容積率200 %
地目宅地
土地権利所有権
取引態様専任媒介
引渡し相談
備考欄
◆現況:居住中◆上水道:公営水道(引込あり)、下水道:公共下水、ガス:なし(オール電化)◆主な契約条件:売主の契約不適合責任の免責、境界非明示、現況有姿売買、その他要相談◆物件詳細はお問い合わせください。
Contactエリアを問わず対応可能です
全国各地の不動産を対応することができます。 得意としているエリアは、山梨全域はもちろん、京都・大阪での経験が長くあり、得意としておりますので、お気軽にご相談ください。
ご相談・お問い合わせはこちら




























